大室高原別荘地 戸建
【 お庭付き 一戸建て 】吹き抜けリビング、広いお庭、果樹園付きのアメリカンハウス
| 価格 | 最寄駅 | 所在地 | 面積 | 築年月 | 間取り |
|---|---|---|---|---|---|
2200万円 | 富戸駅 車 8分 | 静岡県伊東市富戸 | 土地/512.89㎡ 建物/144.05㎡ | 2003年03月 | 3 LDK |
物件写真・間取り
物件概要
| 物件名 | 大室高原別荘地 戸建 |
|---|
| 交通機関 | 富戸駅 車 8分 |
|---|
| 所在地 | 静岡県伊東市富戸 |
|---|
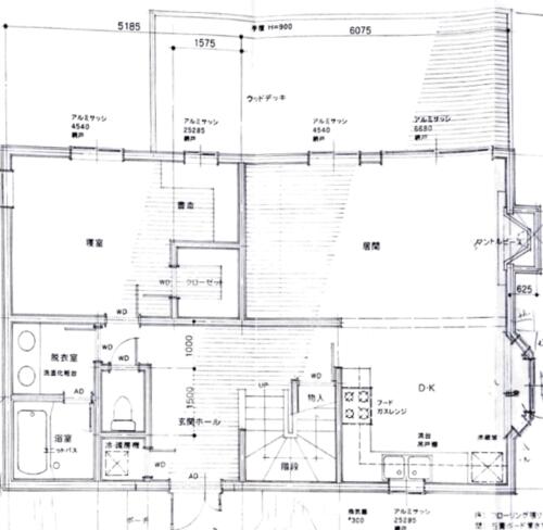
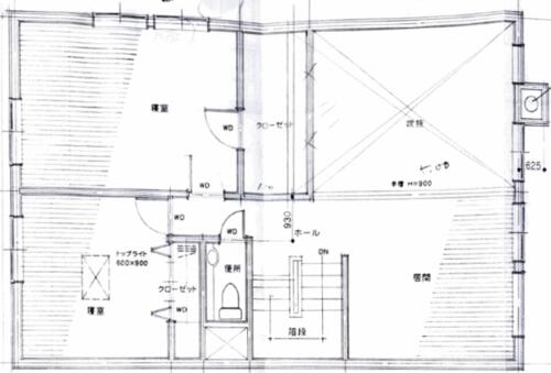
| 間取り | 3 LDK |
|---|
| 土地権利 | 所有権 |
|---|
| 土地面積 | 512.89㎡ |
|---|
| 建物面積 | 144.05㎡ |
|---|
| 建物構造 | 木造 |
|---|
| 階 / 階数 | 2 |
|---|
| 築年月 | 2003年03月 |
|---|
| 都市計画 | 非線引区域 |
|---|
| 用途地域 | 無指定 |
|---|
| 駐車場 | 有 |
|---|
| その他制限 | 建築基準法22条区域、景観法、盛土規制法等 |
|---|
| 地目 | 他 |
|---|
| 現況 | 居住中 |
|---|
| 引渡し | 相談 |
|---|
| 設備 | 東京電力他、私営水道、プロパンガス、個別浄化槽 |
|---|
| 備考 | 駐車場:3台可 自治会費:12,000円/年 水道名義変更料:33,000円/年 温泉引込可 温泉権利金:1,885,710円(別途接続工事費要) 温泉使用料:13,825円/月10㎥まで |
|---|
| 取引態様 | 媒介 |
|---|
| 物件番号 | P1031 |
|---|
| 情報登録日 | 2025年09月23日 |
|---|
| 情報更新日 | 2025年09月23日 |
|---|


